忍者ブログ

さんぺい@一条工務店i-smart平屋の家

一条工務店i-smart平屋二世帯の家の建築日記です。


スポンサードリンク

[PR]

×

[PR]上記の広告は3ヶ月以上新規記事投稿のないブログに表示されています。新しい記事を書く事で広告が消えます。


スポンサードリンク


一条工務店の新たな「i-シリーズZero」って何?

 にほんブログ村 住まいブログ 一戸建 一条工務店へ
にほんブログ村

一条工務店の新たな「i-シリーズZero」って何?


一条工務店のi-smartとi-cubeをまとめて、「i-seriesⅡ」(i-シリーズ2)と言っていますが・・・・
http://www.ichijo.co.jp/topics/i-series2/index.html

平成28年3月1日にハウス・オブ・ザ・イヤー・イン・エナジー2015の大賞を一条工務店が受賞しました。
http://www.jcadr.or.jp/HOYE/house-2015top_result.html
http://www.jcadr.or.jp/HOYE/



i-シリーズZero???

またいろんな言い方しますねぇ。新たな商品?ではないと思うし、どういう意味だろ。また今度営業さんに聞いてみよ。

みなさんの参考になるブログはこちらから
↓ ↓ ↓
にほんブログ村 住まいブログ 一戸建 一条工務店へ
にほんブログ村

 

拍手[2回]


スポンサードリンク


【Web内覧会】玄関編。一条工務店i-smartの標準玄関はこんな感じ。お白洲!?。

 にほんブログ村 住まいブログ 一戸建 一条工務店へ
にほんブログ村

【Web内覧会】玄関編。一条工務店i-smartの標準玄関はこんな感じ。お白洲!?。


住んでみて半年が経ちました。そろそろweb内覧会をしていきたいと思います

まずはさんぺいの一番のお気に入りの場所。「玄関」です。

特に広いわけでも、いいオプションがついているわけでもありません。

でもなんか好きなポイントです。


夜の感じ。

上部はセンサーライトです。入り込んだ場所は屋根の中ですので、工事費は坪単価×面積の計算に算入されています。でも雨のときはやはり便利でお気に入りです。


お昼はこんな感じ。ドアは

三協アルミの断熱ドア プロセレーネ親子ドア断熱タイプ(QPN07)アーモンドメイプル

です。標準で選べるものです。色がとてもお気に入りです。



玄関ドアを開けると正面にいきなりスリットスライダー両開きが出てきます。


大岡越前や遠山の金さんのお白洲のようです。


でもこのスリットスライダーはいい仕事しています。通常は温度が低くなる玄関には、密閉感の無いスリットスライダーのような建具は玄関周りには避けがちかもしれませんが、一条工務店のお部屋はどこもほぼ同じ温度。ですので、スリットスライダーでも大丈夫でした。開放感があって、白洲の感じがお気に入りです。


中側から見た感じがこんな感じ。


玄関周りは決して広くありませんが、スリットスライダーを開放しておくと、とても広く感じます。


くつ箱は、標準のシューズウォールを付けました。SW11-M165Rです。

i-スタンダードと悩みましたが、i-smartならやっぱり定番をと思い、これにしました。

上部は空いていません。塞いでいます。指示で選べたと思います。

下部は


ライトが点きます。あまり使わないかも。



あとシューズクロークを作りました。引き戸です。狭いですが、濡れたカッパや、かさ、泥んこのおもちゃ、野菜などを入れておけます。重宝しています。


クロークは玄関横と繋がっています。


折戸を開けると


棚があります。


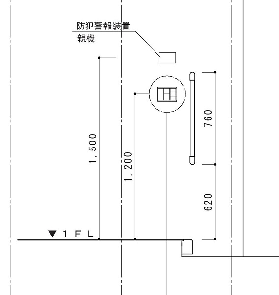
あと玄関の壁には手摺をつけました。とても便利。健常者でも、靴をはいたりするときに使います。

この高さやスイッチ配置は事前に設計さんに細かく指示しました。


このような図面で棟梁に指示しています。

電気屋さんにも

スイッチ位置も指示をして


このようにつきました。
左側は勝手にスイッチのセンサー部です。



Panasonicの壁取付 熱線センサ付自動スイッチ WTK1411

です。


このセンサーの親機(説明書では親器)以外にも廊下にセンサーをつけています。

最初は感度やセンサー範囲に不安がありましたが、問題ありません。つけてよかったです。

親機は約3m、角度160度の範囲の3度以上の温度変化、0.3m/s~1m/sで遮る速度を感知して、人間などの通過として感知します。

人間などですので


コヤツにも感知します。


外へ出たいニャん

玄関なのに暖かです。



この暖かい玄関の建築中の様子を振り返ると・・・

 
基礎工事の際は、最初はこんな感じでした。


玄関周りは防蟻処理を施し


上棟時に玄関周りを取り付けて


上棟時にこんな感じになりました。断熱材が厚い。

そして上棟2日目に建具屋さんが、玄関ドアを付けにきました。


すぐに玄関ドアがつくと思わなかったので印象に残っています。


そして内装も後半になったぐらいで、左官屋さんが玄関タイルをつけました。

とてもいい腕の左官屋さんでした。


タイルは一枚一枚丁寧に切っていました。


中の施工中の様子です。とてもキレイでした。

このあと、タイルを貼って終了という感じです。



毎日見る足元のタイルですので、タイルの仕上がりがホントにキレイでよかったです。

一番言いたいことは、玄関は寒いというイメージがありますが、そこまでそれを感じさせないのが一条の良さでしょうか。

みなさんの参考になるブログはこちらから
↓ ↓ ↓
にほんブログ村 住まいブログ 一戸建 一条工務店へ
にほんブログ村

 

拍手[7回]


スポンサードリンク