忍者ブログ

さんぺい@一条工務店i-smart平屋の家

一条工務店i-smart平屋二世帯の家の建築日記です。


スポンサードリンク

[PR]

×

[PR]上記の広告は3ヶ月以上新規記事投稿のないブログに表示されています。新しい記事を書く事で広告が消えます。


スポンサードリンク


後悔と心配しているところ(i-smart上棟もまだなのに)

さんぺいです。

子供たちがトムトジェリーのDVDをエンドレスで見ています。

内容は昔とまったく変わっていませんが、子供たちは大ウケです。

子供の笑いのツボは、いつの時代も変わらないのですね。


みなさんの参考になるブログはこちらから
↓ ↓ ↓
にほんブログ村 住まいブログ 一戸建 一条工務店へ
にほんブログ村

さて、我が家は着手承諾~着工(家の解体)まで1ヶ月でした。

ほんとギリギリの時間で、上棟の日が決まっていましたので、あせって印鑑を押した感がありました。

その後に先輩施主さんのブログを見ると、自分の間取りなどに後悔と心配が出てきます。(特に家内)

さんぺいは家内の心配を毎日聞かされていて、誰かからの「大丈夫ですよ」の一言が欲しい毎日です。

たとえばどんなことかといえば




1、勝手口の階段が、(家内が)思っていたよりも高く、ドアを開けたら怖いのでは。手摺をつけるか?


これがその階段です。


 家内が言うには、ドアを開けて右側が下りる側だから、落ちるように感じるかもというのです。

いやいやそんなドアをあけて、落ちるなんて感じないと思うのですが。

昔の「風雲たけし城」の悪魔の館というのがありました。
 
ストロング金剛さんが「ワー」とか言って襲い掛かって、

 
ドアをあけると・・・池に落ちるみたいな。


そんなイメージなんでしょうか(笑)


手摺は却下しました。





2、リビングのピアノの上にダウンライトが欲しかった。



いやいや、十分シーリングLED58W12畳用で明るいって。と言いますが不安は消えてくれません。





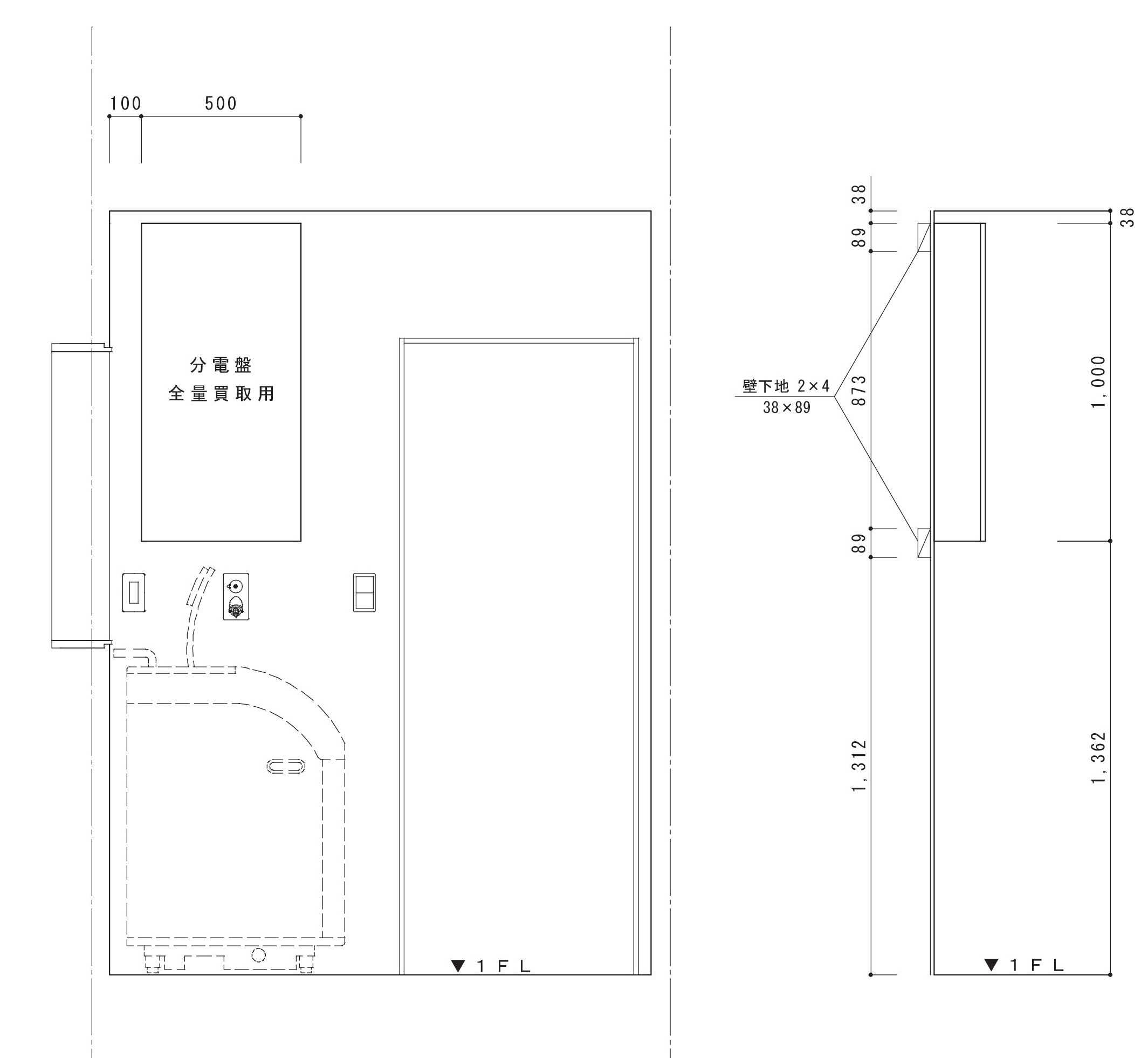
3、洗濯機横の太陽光分電盤が大きすぎて、洗濯機まわりが使えないのではないか。


これも他の展示場の営業さんに教えてもらったのですが、太陽光が大容量だと分電盤が鋼鉄製の大きなものに変わるということを完成現場見学会で見つけ、洗面所の通路にあったものを端に変更してもらいました。これがどの程度邪魔なものか、洗濯用品とか後付できるスペースがあるかどうかなどイメージがわかないというのです。

これは私もちょっと心配しています。

これについては設計さんから提案がなかったので、今設計中の方は要チェックです。



4、こども部屋の服の収納量に不安が残る



これは正直よくわかりません。いつも同じ服ばかり着ている男の子ですので、当分はいいと思いますが。



5、シューズクロークが狭いので、どう使うか考えられない。あなたのゴルフクラブは置かないで。



狭いのはそんだけ予算がなかったんだからしょうがないじゃない。と言うのですが。外には物置も、猫の避難小屋もあるし、断捨離してください。そしたら、あなたのゴルフクラブなんて置く場所は無いとのこと・・・・。はいわかりました。



6、先輩施主さんのブログを見て、住友林業への憧れが残る家内が、天井に木目シートを張ればよかったと言う始末。


ブログの方は、ビターウォールナットの床だから合うんだって。私たちはグレーウォールナットです。変更なんてできません。無理です。



7、狭いリビングのラグの配置に迷う。


テレビボードを採用していますが、40型のテレビを置きます。(今が37型)私は小さいソファーを置きたいのですが、家内は全面ラグにしようとしています(たぶん)。たしかに通路兼用で狭いリビング(実質リビングは4畳半)なので、それでもいいのですが、散らかりそうで・・・。



8、寝室及びWICの裏のパワコンの音が気にならないか



先輩施主さんのブログを見て、不安になっています。先輩施主さんのゴム対策がうまくいくといいですね。


もう~ 早く一条さん、建ててください。

早く建てて諦めさせて。


みなさんの参考になるブログはこちらから
↓ ↓ ↓
にほんブログ村 住まいブログ 一戸建 一条工務店へ
にほんブログ村






拍手[5回]


スポンサードリンク


家内が後悔しまくり。着手承諾後、HRDに発注されていると標準品も別途扱い。18万円!?

さんぺいです。

最近お天気が悪いですね。桜もあっという間でした。

我が家の土地もドロドロです。犬や猫たちがかわいそうです。


みなさんの参考になるブログはこちらから
↓ ↓ ↓
にほんブログ村 住まいブログ 一戸建 一条工務店へ
にほんブログ村


以前に打合せしている展示場とは別の展示場に行った際、案内してくれた別の営業さんから聞いたアドバイスで・・・


ラクッキングリルはほんといいですよ。絶対採用された方がいいですよ。」


ということで、一度は見積もりにいれていましたが、仕分けにより家内自身であきらめた経緯がありました。

しかし、先輩施主さんのブログを拝見しているうちに、最近になって後悔。

3口グリルがいい。連動型がいい。楽に洗えるのがいい。

が理由だそうです。
 
定価が37万円、市場価格が15万円ほど。

一条工務店の標準との差額であれば66000円でオプション採用できます。




あとは水ほうき水栓・・・


一条の標準のステンレス流しについている水栓は角にあり、手元が少し遠いように感じると言っていたのですが、今になって、斜めに水のでるこのタイプがよかったのではないかと家内が思い始めました。

これについては標準で採用できます。


で・・・・。恐る恐る営業さんに。

「数日前に門柱の移動で変更契約をしたばかりですが、一緒にこれも変更できますか?」とお聞きしたところ・・・

「申し訳ありません。加工依頼を出しているので、追加は追加で別契約になります。加工依頼後の変更は標準扱いができませんので、それぞれがそれぞれの価格になります。」

ラクッキングリルは変更手数料込みで約14万5千円、水ほうき水栓が約3万円18万円ほどになりますが・・・。



・・・・・・・・・・・。



あきらめます。


着手承諾は計画的に・・・。


他にも家内がいろんな方のブログを見て、毎日いろいろ心配を聞かされます。

にほんブログ村 住まいブログ 一戸建 一条工務店へ
にほんブログ村




拍手[4回]


スポンサードリンク