[PR]
[PR]上記の広告は3ヶ月以上新規記事投稿のないブログに表示されています。新しい記事を書く事で広告が消えます。
一条工務店i-smart平屋二世帯の家の建築日記です。
[PR]上記の広告は3ヶ月以上新規記事投稿のないブログに表示されています。新しい記事を書く事で広告が消えます。
今日は天気がよかったので、子供たちと森の中を散策。
自分が花粉症を昨年発症したのをつい忘れていました。
いま、かなり悪化してきました。
つらい。つらすぎる。
ポチッとしていただければ幸甚です。![]()
にほんブログ村
さて、2世帯平屋の我が家を建て替える際に、最初はリフォームで迷い、一条工務店を知り、一条で話を進めていくが、住友林業の家も気になった。というところで、契約の際は直前まで迷いました。
そんな中、住友林業さんで、プロの設計士さんが目の前で要望を聞き、その場で図面を無料で引いてくれるというイベントがあって、引いてもらいました。それがこちら。
ほんと感動しました。
寡黙なダンディな住友林業のベテラン設計士さんは、要望を伝えると少し悩みながらも1~2時間ほどで、書いていただきました。
日当たり、風の流れ、生活動線、こだわりのウッドデッキなどなど、すべて網羅されていました。
大きな窓に日当たりがよく、風を感じる木の家にあこがれる家内も大喜び。
こっからは私の個人の感覚ですが
住友林業のイメージは・・・
ビッグフレーム工法で、天井高の高い大開口の窓、風の抜ける家、木の調和がすばらしい自由なデザイン。しつこいぐらいに営業さんが熱心で、値引きもする。
要するに、明るく、風を感じる、自由度の高いデザイン性の家というイメージ。しかしちょっとお高いが値引きはしてくれる。
一条工務店のイメージは・・・
2×6工法で、開口部は広くとらず、天井も低くなってもいいので、断熱材をしっかり入れる高気密高断熱の家。木造を感じさせない総タイル張り・樹脂サッシのどこから見ても一条の家をわかるデザイン。過度な営業はせず、値引きは絶対しない。
要するに、高気密高断熱で全館床暖房かつ太陽光のある「性能高い家」を安価に提供。しかし値引きはしないし、どっからみても一条の家とわかるものばかり。
あきらかに「ま逆」です。
比較対象にすること自体おかしいのかもしれません。
そこで、住友林業のダンディ設計士が書いた図面を、さんぺいがJW_CADで書き、さんぺいが書いたものとして、一条工務店で、ビッグフレーム工法の家が建てられるのであれば、一条に決めようと思い、契約前にさんぺいの転写した図面を、一条の店長さんに渡しました。
住友林業の図面をさんぺいがJWWで書いたものの一部がこちら
正直、一条ルールの壁に阻まれてできるわけ無いと思って渡しました。(ただ、ロスガードはやむを得ないと思ってましたが)
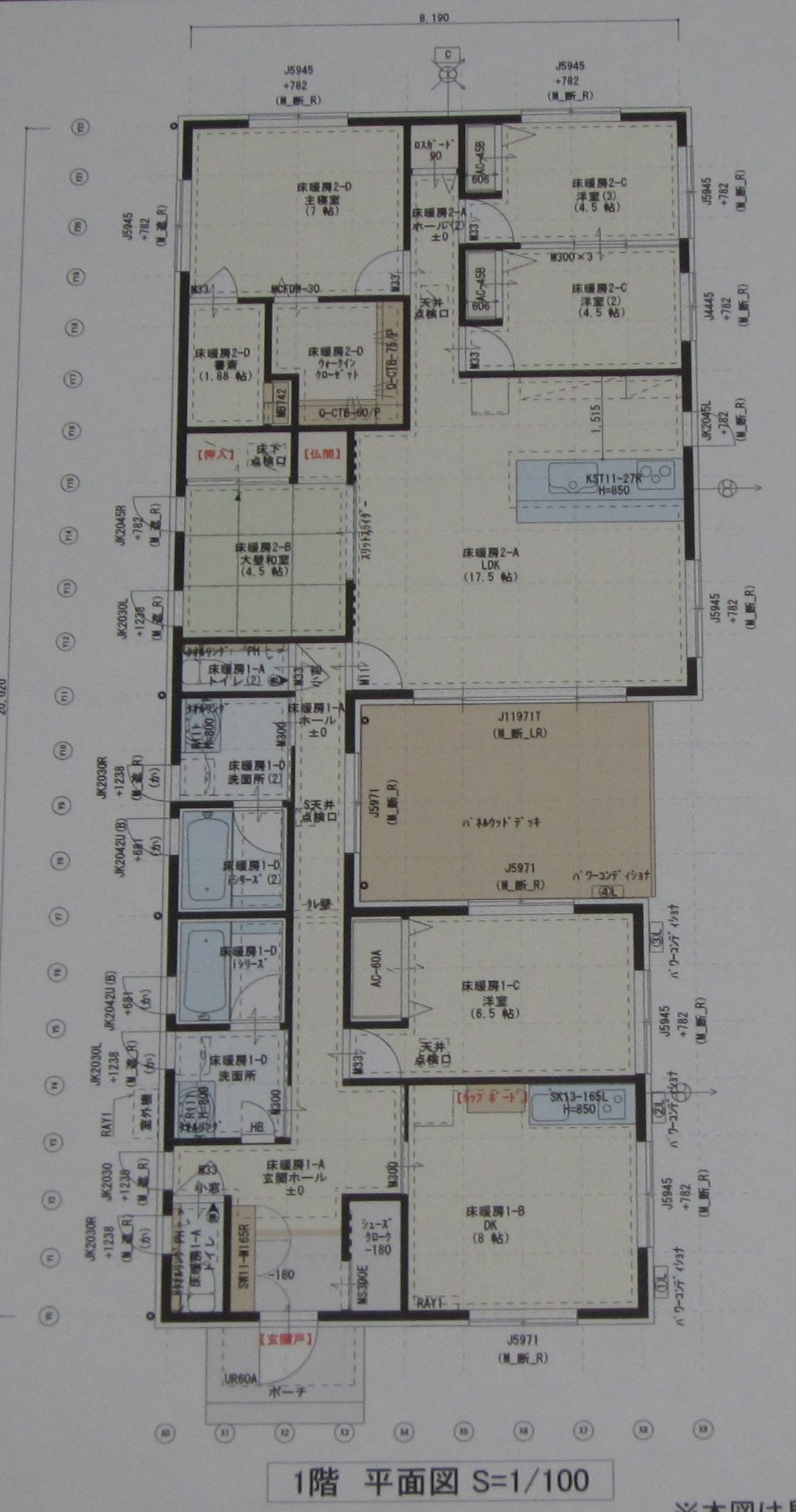
契約前にHRDのフィリピンチーム一条工務店が書いた図面はこちら
一条工務店i-smart平面図
えっ。この凸凹かつ開口部のある家が、i-smartでもできる。すごい。
住友林業のビッグフレーム工法の平面図
一条工務店の正面パース
この玄関・・・。お勝手口みたい。
住友林業の正面パース
提案力で住友林業に軍配シチズン コードレス温湿度計(簡易熱中症指標表示付き) THD501

一条工務店 内部イメージ
住友林業の内部イメージ
これまた提案力で住友林業に軍配か。
しかししかし。ここで決定的にちがったのが。
一条工務店全体パース
住友林業全体パース
住友林業さんの上にも太陽光が載っていますが、一条工務店の方が3倍載るということでした。
住友林業さんは今は仕様が変更となっています。
当時で3倍も搭載量がちがったら、そりゃ一条工務店を選ぶでしょ。あなたのマイホーム 絶対トクする入手ガイド2015 (エスカルゴムック 313) ムック

こういう経緯で住友林業さんへの迷いを断ち切りました。
ちなみに値段も一条さんのほうが、当時で500万ぐらい安かったですが、打ち合わせを進めるにつれて、最初に住友林業さんの言っていた額と同じになりました。(泣)
デザインは住友さんのほうがいいですかね。(カミさんがボソッ)
今、一条工務店の家、特にi-smartがすごく増えているように思います。
なんか周りに今後、見た目にわかりやすいi-smartばっかりになりそう。
あくまで個人的な主観です。
私は、デザインよりも高気密高断熱が欲しい!選んでよかった。(と建てた後に思いたい。)
