忍者ブログ

さんぺい@一条工務店i-smart平屋の家

一条工務店i-smart平屋二世帯の家の建築日記です。


スポンサードリンク

[PR]

×

[PR]上記の広告は3ヶ月以上新規記事投稿のないブログに表示されています。新しい記事を書く事で広告が消えます。


スポンサードリンク

一条工務店のリフォーム

先日、我が家の測量と、解体業者さんによる調査、設計者さんの紹介がありました。

設計さんとお会いする次回が楽しみです。


間取りについては、設計者さんともまだ会ってもいないのですが、私と家内と母とすでに何度も議論し、そのたびJW_CADで、簡単な図を書いては、あーでもない、こーでもない とやっています。

仕事で簡単な図面をひくのにJW_CADは良く使っていますが、とってもいいですよ。
プロの建築士の方もたくさん使っています。
無料ですし、マウスの独特の操作さえ覚えてしまえば、家内でも簡単な図がひけていました。

Jw_cadのページ
http://www.jwcad.net/


我が家の間取りの議論は、ハウスメーカーの選定前からしています。

以前にも書きましたとおり、最初はリフォームで考えていました。



むか~しの手書き図面をJW_CADで書いたものです。

我が家は田舎ですので、土地はあるのですが、南北のウナギの寝床みたいな場所なのが特徴です。

この家を一条工務店のリフォームの方に見ていただきました。

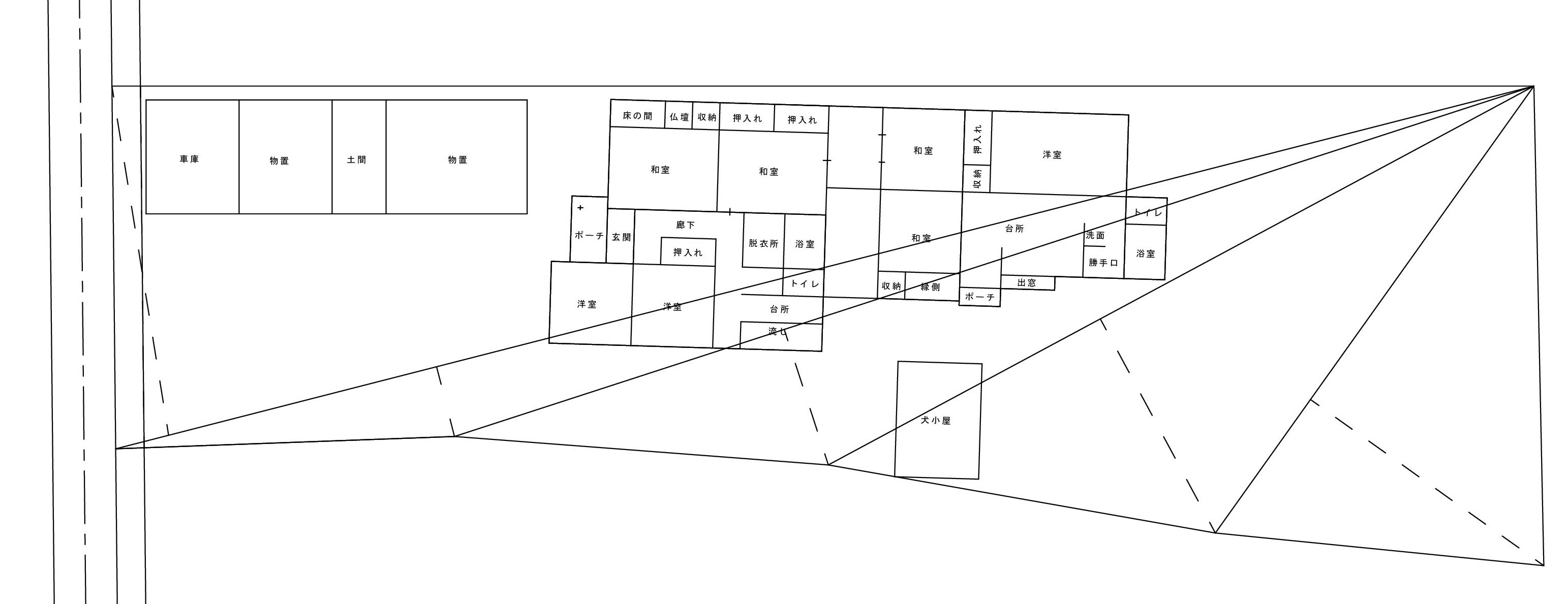
そのときに一条さんが書いてくれた現況図が これ
 

この、今住んでいる家の間取りは、左側の母の家と、右側のさんぺい邸を廊下でくっつけただけなので、動線がとても悪いことが問題点になっています。

子供が母に会いにいくには、以下の通り、色んな部屋を経由していかないといけません。


そこで一条工務店のリフォームさんが考えてくれたプランは これ


すごい!!

間取りの願いは概ね叶えてもらっていました。
ただ、LDKの広さ、仏壇の位置、西日となるリビングが気になりましたが、リフォームでは床面積は基本的に増やすことはできませんので、リフォームではこれがベストの案と思いました。

事前にお伝えした希望が
・日当たり良く、風が抜ける南側のLDKを新設
・スレート葺屋根やサイディングに当たる熱が、断熱材の状態が悪いために伝わってきて暑いので改善
・2世帯のプライバシーは、今の状態を維持。(お互いに都合のいいときだけ、顔合わせできる)
・母のLDK(ミニキッチン)、トイレ2箇所、子供部屋2室、主寝室が必要
・シロアリが心配なので対策を
・冷房効率の高い断熱材や窓等の建材を使用

これらについては、間取りの要望というよりも、家の構造そのものの希望が多く、全面改装の見積もりとなりました。

そのため、金額がローコストが建つかもしれない値段に・・・

でも新築の一条さんと同じように、加圧注入材を仕様するし、建材も新築と同じものも導入可能とのことでした。



悩みましたが、新築の一条さんの間取りプランも頂くことにしました。
にほんブログ村 住まいブログ 一戸建 一条工務店へ
にほんブログ村

拍手[1回]


スポンサードリンク