忍者ブログ

さんぺい@一条工務店i-smart平屋の家

一条工務店i-smart平屋二世帯の家の建築日記です。


スポンサードリンク

[PR]

×

[PR]上記の広告は3ヶ月以上新規記事投稿のないブログに表示されています。新しい記事を書く事で広告が消えます。


スポンサードリンク


不細工な電気メーター取付られました。いやホントブサイクって。★★一条工務店i-smartの上棟63日目★★

さんぺいです。

ランキングに参加しています。ポチッとしていただけるとありがたいです。
↓ ↓ ↓
にほんブログ村 住まいブログ 一戸建 一条工務店へ
にほんブログ村

不細工な電気メーター取付られました。いやホント不細工って。★★一条工務店i-smartの上棟63日目★★

木曜日は現場稼動74日目。着工日から102日目。上棟63日目 便器とコフレル・床暖房リモコン・売電買電メーター・勝手にスイッチ取付 
です。

今日も電気屋さんと水道屋さんの工事です。

そして、電気メーターが取り付けられました。
 

 うぁ~。なんともブサイク。

右が買電のスマートメーター、左が売電用のアナログメーターです。

オプションのカバーがあるのは知っていましたが、大きさがこれだけ違うと2個セットの化粧オプションボックスにも入らなかったのではないでしょうか。

まだ左右の大きさが揃っていれば目立ちにくいのかもしれませんが、買電メーターがでかすぎます。


あとは、玄関の勝手にスイッチが取り付けられていました。

仕様書をネットで確認すると、横切るのには反応しやすいが、向かってくる動きには反応しにくいと書いてありました。設計さんや監督さんに確認しましたが、大丈夫とのことでひとまず安心しています。


インターホン親機(親世帯)


インターホン親機(子世帯)、床暖房スイッチなどが付きました。


あとは水道屋さんがアラウーノとコフレルを設置していました。トイレはこれで完成ですね。


親世帯の標準トイレも設置です。


あと残念ポイントの太陽光の分電盤の扉板が取り付けられました
これでは顔をいれることもできません
電気屋さんと設計さんで再考することとなりました。

みなさんの参考になるブログはこちらから
↓ ↓ ↓
にほんブログ村 住まいブログ 一戸建 一条工務店へ
にほんブログ村
 

拍手[3回]


スポンサードリンク


開けても点検できない分電盤?。外壁周り照明とスイッチ設置。★★一条工務店i-smartの上棟62日目★★

さんぺいです。

ランキングに参加しています。ポチッとしていただけるとありがたいです。
↓ ↓ ↓
にほんブログ村 住まいブログ 一戸建 一条工務店へ
にほんブログ村

開けても点検できない分電盤?。外壁周り照明とスイッチ設置★★一条工務店i-smartの上棟62日目★★

水曜日は現場稼動73日目。着工日から101日目。上棟62日目 電気屋さん外灯とスイッチ、太陽光分電盤設置、水道屋さん重機搬入 
です。

 

水道屋さんが重機を搬入してきました。水道の引き込みと雨水浸透枡の工事で使用するようです。今日は準備だけのようでした。

電気屋さんが作業開始。


外灯と防水型スイッチの取り付けを行っていました。


こちらはセンサーライトです。


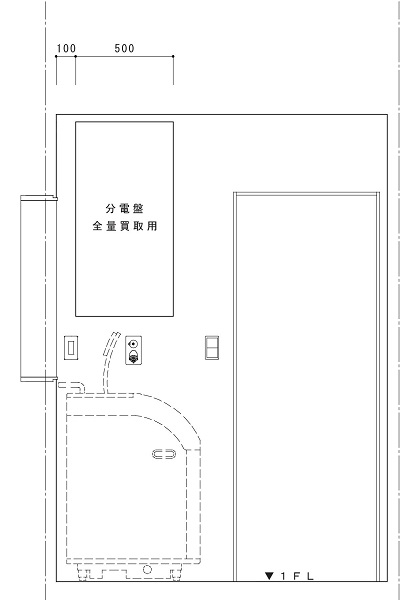
太陽光の分電盤も設置途中です。蝶番が右側についていました。


いやいや、そんな方向に開けると、下が洗濯機置場なんで中が見えなくなるんですけど

これは設計士さんに確認です。



図面では開き方まで指示していませんが、当然だとおもいますが。

まだ施工中ですので、これから修正するのかもしれませんが。 

 
あと、HBの角の壁紙がちょっと雑になっていました。さんぺいメモに記録です。


庭にホシ姫様の説明書が落ちていました。ナゼこんなところに。拾って保安ボックスに入れておきました。

みなさんの参考になるブログはこちらから
↓ ↓ ↓
にほんブログ村 住まいブログ 一戸建 一条工務店へ
にほんブログ村
 

拍手[1回]


スポンサードリンク